Hohlwellendrehdurchführung mit Patronenmontage
Metrische Ausführungen
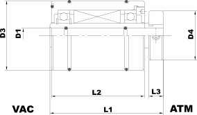
| M | P | D1 | D3 | D4 | L3 | L1 | D5 | L2 | R | SE | BT | FS |
|---|---|---|---|---|---|---|---|---|---|---|---|---|
| 10 | 15100 |
∅10 +0.03 +0.01 |
∅48 +0 -0.02 |
∅34 | 10 | 78 | ∅48 +0.05 +0.03 |
64 | ∅10 -0.01 -0.03 |
1 | 16003 | S38 |
| 20 | 15200 |
∅20 +0.04 +0.02 |
∅58 +0 -0.03 |
∅44 | 10 | 82.5 | ∅58 +0.06 +0.03 |
68.5 | ∅20 -0.01 -0.03 |
1 | 6906 | S48 |
| 25 | 15250 |
∅25 +0.04 +0.02 |
∅63 +0 -0.03 |
∅49 | 10 | 88 | ∅63 +0.06 +0.03 |
74 | ∅25 -0.01 -0.03 |
1 | 6907 | S53 |
| 30 | 15300 |
∅30 +0.04 +0.02 |
∅73 +0 -0.03 |
∅54 | 10 | 93 | ∅73 +0.06 +0.03 |
79 | ∅30 -0.01 -0.03 |
1 | 6908 | S60 |
| 40 | 15400 |
∅40 +0.05 +0.02 |
∅88 +0 -0.04 |
∅69 | 12 | 96 | ∅88 +0.07 +0.03 |
80 | ∅40 -0.01 -0.03 |
1 | 6910 | S75 |
| 50 | 15500 |
∅50 +0.05 +0.02 |
∅98 +0 -0.04 |
∅79 | 12 | 98 | ∅98 +0.07 +0.04 |
82 | ∅50 -0.01 -0.03 |
1 | 6912 | S85 |
| 75 | 15750 |
∅75 +0.05 +0.02 |
∅137 +0 -0.04 |
∅109 | 15 | 115 | ∅137 +0.07 +0.04 |
96 | ∅75 -0.01 -0.03 |
1 | 6918 | S125 |
3d Modell als Step Datei herunterladen
Zöllige Varianten
| M | P | D1 | D3 | D4 | L3 | L1 | D5 | L2 | R | SE | BT |
|---|---|---|---|---|---|---|---|---|---|---|---|
| 1/2 | 65010 |
∅12.75 | ∅50.75 | ∅31.75 | 21.08 | 82.55 | ∅50.8 +0.05 -0 |
69.85 | ∅12.7 +0 -0.05 |
0.76 | 6903 |
| 1 | 65020 |
∅25.45 | ∅66.6 | ∅50.8 | 12.7 | 84.81 | ∅66.675 +0.05 -0 |
69.85 | ∅25.4 +0 -0.05 |
0.76 | 6906 |
| 1 1/2 | 65030 |
∅38.16 | ∅82.5 | ∅76.2 | 15.75 | 94.34 | ∅82.55 +0.05 -0 |
76.2 | ∅38.1 +0 -0.05 |
0.76 | 6909 |
| 2 | 65040 |
∅50.85 | ∅95.2 | ∅88.9 | 15.75 | 100.74 | ∅95.25 +0.05 -0 |
82.55 | ∅50.8 +0 -0.05 |
0.76 | 6911 |
3d Modell als Step Datei herunterladen
